Rob Tate Family Homes Logo Rob Tate Family Homes Logo
  • Home
  • Designs
  • Featured Projects
  • House & Land Packages
  • About
  • Contact

Lot 49 Steve Eagleton Drive, South West Rocks

<b>Lot 49 Steve Eagleton Drive, South West Rocks</b>

Overview

Price: $879k each unit

3 2 4

205.3m²

Townhouse


Set in a premium estate in South West Rocks, this development offers a high-quality townhouse within a boutique 4-unit complex. Designed for modern coastal living, it presents a rare opportunity to secure a brand-new home in one of the area’s most sought-after new neighbourhoods.

With turn key inclusions, this is a hassle-free opportunity to secure a dual-income property in a fast-growing coastal market. If you’d like to personalise the homes, we can explore select variations and upgrade options together.

Create your ideal lifestyle:

✔ Live in or Airbnb

✔ Purchase a single residence or all four

✔ Secure both as a long-term investment strategy

✔ Use one as a holiday base or for steady rental income


Complete Turnkey Inclusions – Investor Ready

- All council fees and charges required for Construction and Occupation Certificates - Low-maintenance, professionally landscaped front and rear yards with drought-tolerant native plants

- Fully fenced yards with side gates for security and privacy

- Durable exposed aggregate concrete driveways

- 25-year structural warranty providing long-term peace of mind

- End-of-maintenance period service included

- All essential features included – no hidden extras Built with Trusted Brands for Long-Term Reliability

- Bradnam’s aluminium windows and sliding doors – scratch-resistant and built to last

- Keena Kitchens – high-quality inclusions by an award-winning local joiner

- Westinghouse appliances – reliable and energy-efficient

- Fienza tapware, vanities and accessories – designed for both style and durability


External Features

– Built for Street Appeal & Longevity

- Energy-efficient external lighting including bunker lights to porch and downlights to alfresco

- PGH exposure-grade bricks featured in the Lifestyle Collection (where applicable)

- Tinted glass front door with multiple colour choices

- Colorbond® roof sheeting with full colour range – durable and low maintenance

- Colorbond® gutters and 10mm PVC round downpipes

- Complete physical termite protection system

- Sectional garage door with remote access and epoxy-coated floor – clean and durable finish

- External taps for garden and maintenance use

- Plaster-lined garage and alfresco ceilings

- Fully tiled patios – Ideal for tenant durability and easy upkeep


Internal Features

– Designed for Tenant Appeal & Easy Maintenance

- Engineered stone benchtops with custom cabinetry

- Westinghouse cooktop, electric oven, rangehood, and dishwasher

- Ducted air-conditioning - Soft-close drawers and cupboards

- Double bowl sink with quality mixer tap

- Semi-framed glass shower screens to bathroom and ensuite

- Frameless mirrors to bathroom and ensuite for a sleek finish

- Tiling to ceiling in bathrooms & ensuites - Freestanding bath

- Blended carpet to bedrooms and high-grade vinyl plank flooring in living areas

- Quality roller blinds included throughout

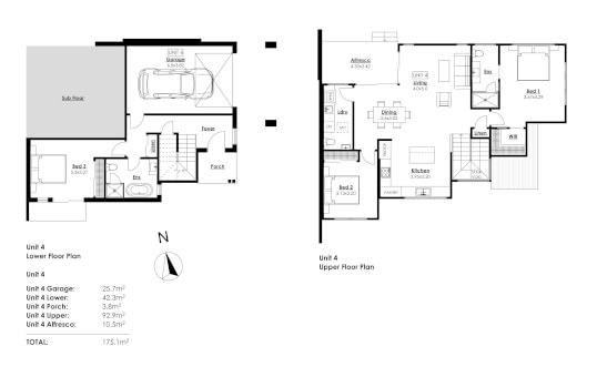
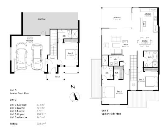
Download Floor Plans
Rob Tate Family Homes
Rob Tate Family Homes

Floor Plans

Rob Tate Family Homes
Rob Tate Family Homes
Rob Tate Family Homes
Rob Tate Family Homes

Would you like to know more?

Enquire Below

Rob Tate Family Homes

Where to Next...

  • Home
  • Designs
  • Featured Projects
  • House & Land Packages
  • About
  • Contact

Contact Us

  • 1632 Ocean Drive Lake Cathie NSW 2445
  • 02 6585 5102
  • [email protected]

2026 © All Rights Reserved. Website by Cloud Concepts

Login