Rob Tate Family Homes Logo Rob Tate Family Homes Logo
  • Home
  • Designs
  • Featured Projects
  • House & Land Packages
  • About
  • Contact

Lot 30 Cohen Way, Port Macquarie
(SOLD)

<b>Lot 30 Cohen Way, Port Macquarie</b><div><div><b>(SOLD)</b></div></div>

This house & land package is now sold. Similar packages are available in multiple locations. Contact us to learn more.

Contact Us

Investor Information

9 9 9

Rare Triplex Investment – 3 Incomes

Lot 30 Cohen Way, Port Macquarie

A unique opportunity in one of Port Macquarie's most sought-after suburbs — this rare triplex presents a solid investment with excellent income potential. Positioned just minutes from shops, schools and public transport, each of the three dwellings offers functional layouts, private entries, and strong rental appeal.


Forecast Sale Prices 

$2,550,000 total between the 3 dwellings if listed for sale


Forecast Rentals 

$2,100 per week combined between the 3 dwellings if listed for rent


Complete Turnkey Inclusions – Investor Ready

  • All council fees and charges required for Construction and Occupation Certificates
  • Low-maintenance, professionally landscaped front and rear yards with drought-tolerant native plants
  • Fully fenced yards with side gates for security and privacy
  • Durable exposed aggregate concrete driveways
  • 25-year structural warranty
  • End-of-maintenance period service included
  • All essential features included — no hidden extras


Built with Trusted Brands for Long-Term Reliability

  • Bradnam’s aluminium windows and sliding doors
  • Keena Kitchens – high-quality inclusions by an award-winning local joiner
  • Westinghouse appliances – reliable and energy-efficient
  • Fienza tapware, vanities and accessories – stylish and durable


External Features – Street Appeal & Longevity

  • Energy-efficient external lighting including porch bunker lights and alfresco downlights
  • PGH exposure-grade bricks from the Lifestyle Collection (where applicable)
  • Tinted glass front door with multiple colour options
  • Colorbond® roof sheeting and gutters – durable and low maintenance
  • 22.5° roof pitch for improved drainage and longevity
  • Complete physical termite protection system
  • Sectional garage door with remote access and epoxy-coated floor
  • Four external taps for garden/maintenance use
  • Plaster-lined garage and alfresco ceilings
  • Fully tiled patios – ideal for tenant durability
  • Internal Features – Designed for Appeal & Easy Maintenance
  • Engineered stone benchtops with custom cabinetry
  • 1000mm wide island bench (where applicable)
  • Westinghouse gas cooktop, electric oven, rangehood & dishwasher
  • Walk-in pantry with white melamine shelving
  • Soft-close drawers and cupboards
  • Double bowl sink with mixer tap
  • Semi-framed glass shower screens
  • Dux instantaneous gas hot-water system
  • Frameless bathroom mirrors
  • 2m high ceramic tiling to shower recess
  • Blended carpet in bedrooms & high-grade vinyl plank flooring in living areas
  • Quality blinds or curtains throughout

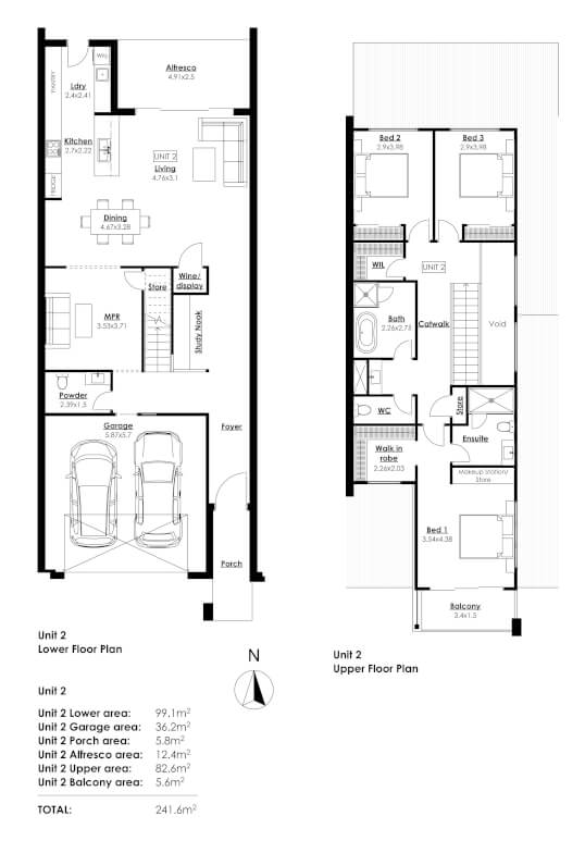
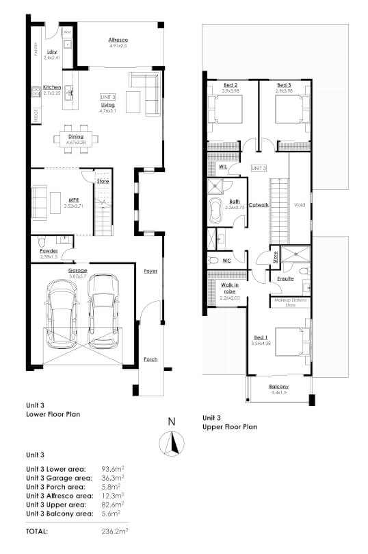
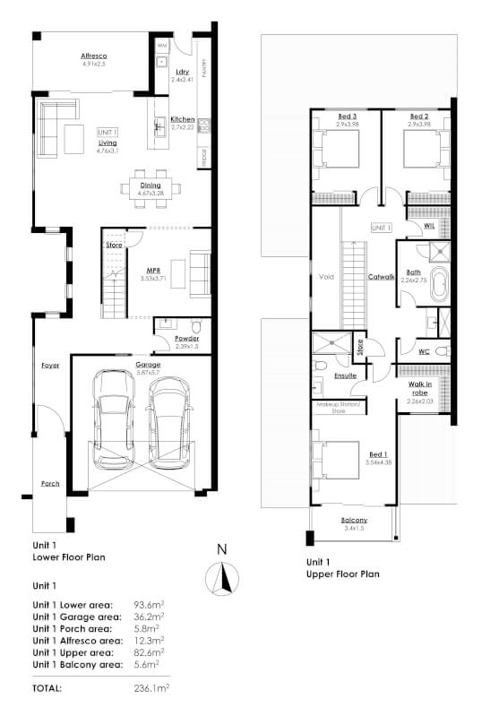
Floor Plans

Rob Tate Family Homes


Rob Tate Family Homes
Rob Tate Family Homes


Would you like to know more?

Enquire Below

Rob Tate Family Homes

Where to Next...

  • Home
  • Designs
  • Featured Projects
  • House & Land Packages
  • About
  • Contact

Contact Us

  • 1632 Ocean Drive Lake Cathie NSW 2445
  • 02 6585 5102
  • [email protected]

2026 © All Rights Reserved. Website by Cloud Concepts

Login