Rob Tate Family Homes Logo Rob Tate Family Homes Logo
  • Home
  • Designs
  • Featured Projects
  • For Sale
    • House & Land Packages
    • Display Homes
  • About
  • Contact


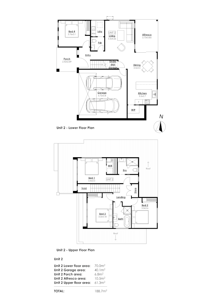
Essington 2


Designed with modern family living in mind, this detached two‑storey home offers a practical layout, quality finishes, and the space to grow. Every element is considered to balance comfort, function, and long-term value.

4 BED | 2.5 BATH | 2 CAR


Key features include:

  • Four well-proportioned bedrooms
  • Double-width lock-up garage with internal access and electric openers
  • Open-plan ground floor with integrated kitchen, living, and dining areas for relaxed everyday living
  • Contemporary kitchen with stone benchtops, quality cabinetry, gas cooktop, and dishwasher
  • Private master suite with walk-in robe and ensuite; central bathroom to service additional bedrooms
  • Durable, low-maintenance materials and finishes throughout, selected for lasting performance 

Whether you're entertaining downstairs or unwinding upstairs, this home is designed to meet the needs of busy families without compromise.

Enquire Now

Façade Options


Rob Tate Family Homes
Rob Tate Family Homes

Floorplan


Rob Tate Family Homes

Would you like to know more?

Enquire Below

Rob Tate Family Homes

Where to Next...

  • Home
  • Designs
  • Featured Projects
  • For Sale
    - House & Land Packages
    - Display Homes
  • About
  • Contact

Contact Us

  • 1632 Ocean Drive Lake Cathie NSW 2445
  • 02 6585 5102
  • [email protected]

2025 © All Rights Reserved. Website by Cloud Concepts

Login



essington-2