
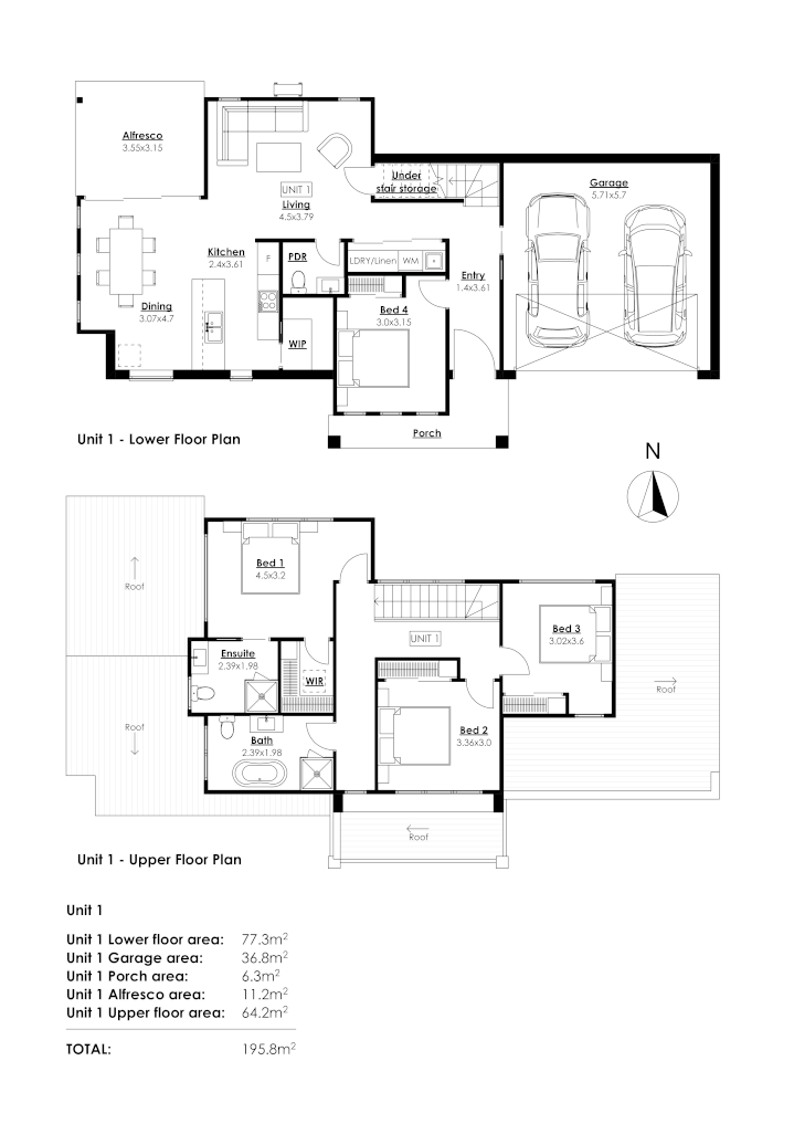
Designed with modern family living in mind, this detached two‑storey home offers a practical layout, quality finishes, and the space to grow. Every element is considered to balance comfort, function, and long-term value.
4 BED | 2.5 BATH | 2 CAR
Key features include:
Whether you're entertaining downstairs or unwinding upstairs, this home is designed to meet the needs of busy families without compromise.