Rob Tate Family Homes Logo Rob Tate Family Homes Logo
  • Home
  • Designs
  • Featured Projects
  • For Sale
    • House & Land Packages
    • Display Homes
  • About
  • Contact


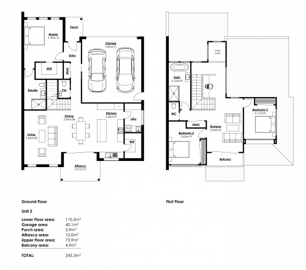
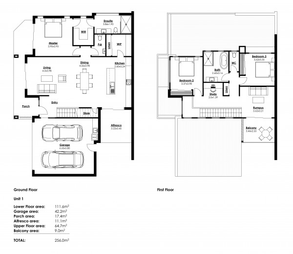
The Miami


"The Miami" offers high-end, stylish coastal living across two storeys. Both units provide ample space, featuring walk-in robes in the master bedrooms and additional areas like a rumpus room and a study. With its mix of luxury and practicality, this duplex represents an appealing investment or residence.

DWELLING 1: 3 BED | 2 BATH | 2 CAR

DWELLING 2: 3 BED | 2 BATH | 2 CAR


FEATURES

• Open plan living with timeless fixtures

• Fully equipped kitchen with stone bench tops, dishwasher & gas cooktop

• Secure garages with electric opener

• Air-conditioning

Enquire Now

Façade Options


Rob Tate Family Homes

Floor Plans


Rob Tate Family Homes
Rob Tate Family Homes

Would you like to know more?

Enquire Below

Rob Tate Family Homes

Where to Next...

  • Home
  • Designs
  • Featured Projects
  • For Sale
    - House & Land Packages
    - Display Homes
  • About
  • Contact

Contact Us

  • 1632 Ocean Drive Lake Cathie NSW 2445
  • 02 6585 5102
  • [email protected]

2025 © All Rights Reserved. Website by Cloud Concepts

Login