Rob Tate Family Homes Logo Rob Tate Family Homes Logo
  • Home
  • Designs
  • Featured Projects
  • For Sale
    • House & Land Packages
    • Display Homes
  • About
  • Contact


The Chloe II

This really is two houses for the price of one.

This clever floorpan offers a 4 bedroom home as well as an attached 2 bedroom villa which is completely self-sufficient & private: this really is 2 houses for the price of one. This design has been tailored to fit perfectly on a corner block. A perfect opportunity for either an owner occupier who may choose to rent the smaller villa & create an income stream or an investor looking for a dual income opportunity.

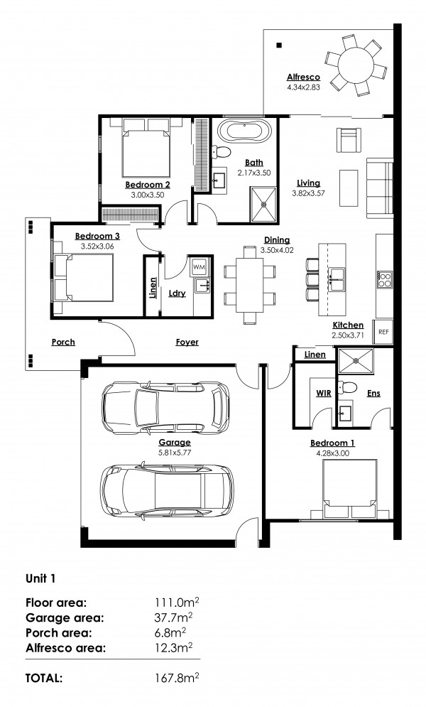
DWELLING 1 - 3 BED | 2 BATH | 1 CAR
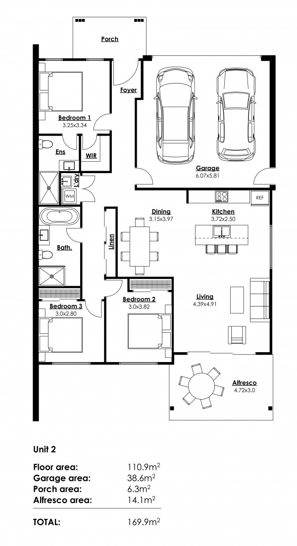
DWELLING 2 - 3 BED | 2 BATH | 1 CAR


FEATURES

• Open plan living with timeless fixtures

• Fully equipped kitchen with stone bench tops, dishwasher & gas cooktop

• Secure garages with electric opener

• Air-conditioning

ENQUIRE NOW

Façade Options


Rob Tate Family Homes
Rob Tate Family Homes
Rob Tate Family Homes

Floor Plans


Rob Tate Family Homes
Rob Tate Family Homes

Would you like to know more?

Enquire Below

Rob Tate Family Homes

Where to Next...

  • Home
  • Designs
  • Featured Projects
  • For Sale
    - House & Land Packages
    - Display Homes
  • About
  • Contact

Contact Us

  • 1632 Ocean Drive Lake Cathie NSW 2445
  • 02 6585 5102
  • [email protected]

2025 © All Rights Reserved. Website by Cloud Concepts

Login